






CONTAINER KANTOOR
KANTOORCONTAINER MET TOILET 21 M2
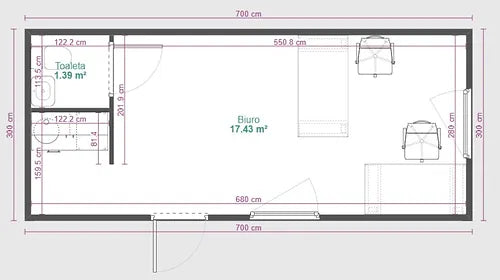
Kantoorcontainer van 21 m² met toilet
Afmetingen:
Buitenlengte: 7,0 m
Buitenbreedte: 3,0 m
Binnenhoogte: 2,6-2,5 m
Technische specificaties
Stalen vloerframe: 60x60x3 mm profiel
Wanden en plafond: 100 mm dik sandwichpaneel met een polystyreen kern.
Warmtedoorlaatbaarheid: 0,38 W/m²K
Vloer: 100 mm dik sandwichpaneel met een polystyreen kern.
Warmtedoorgangscoëfficiënt: 0,38 W/m²·K
Schuifdak
Vloer: sandwichpaneel + 15 mm OSB-paneel + 2,2 mm PVC-vloerbedekking
Elektrische installatie (230V-zekeringen, 5 stopcontacten, 1 schakelaar, 4 lampen)
Ventilatiesysteem: 2 roosters
Stalen toegangsdeur, 80x200 (1 stuk)
Stalen binnendeuren, 80x200 (1 stuk)
Urban PVC-ramen, 110x110 (2 stuks)
Apparatuur
Toiletpot
Kast met spoelbak
5L elektrische boiler
4-delige keukenset
Verzending en retourneren
RETOUR- EN RESTITUTIEBELEID
Bij GOLIAT BENELUX B.V. doen we er alles aan om u producten van goede kwaliteit te leveren die aan de eisen voldoen.
Mocht u echter niet tevreden zijn, dan kunt u gebruikmaken van uw retourrecht conform de Nederlandse en Europese wetgeving.
Herroepingsrecht
- U heeft 14 kalenderdagen vanaf ontvangst van uw bestelling om uw aankoop zonder opgaaf van reden te annuleren.
- De termijn gaat in op de dag dat u (of een door u aangewezen derde) het product ontvangt.
Retourvoorwaarden
- Het product moet in originele staat, ongebruikt en compleet zijn (accessoires, instructies, originele verpakking).
- De retourkosten zijn voor rekening van de klant, tenzij wij een fout hebben gemaakt (beschadigd of niet-conform product).
- Voordat er tot terugbetaling wordt overgegaan, vindt er een inspectie plaats.
Procedure
- Neem contact met ons op via info.stacaravangoliat.nl en vermeld uw bestelnummer en de reden van de retourzending.
- Na validatie ontvangt u retourinstructies.
- Uw terugbetaling vindt plaats binnen 7 tot 14 werkdagen nadat wij het geretourneerde product hebben geïnspecteerd en gevalideerd.